Nền móng là kết cấu kỹ thuật xây dựng nằm dưới cùng của công trình xây dựng như các tòa nhà, cầu, đập nước….) đảm nhiệm chức năng trực tiếp tải trọng của công trình vào nền đất bảo đảm cho công trình chịu được sức ép của trọng lực từng các tầng lầu khối lượng của công trình đảm bảo sự chắc chắn của công trình.
Móng công trình có nhiều loại: móng đơn, móng băng hay móng cọc. Tuỳ thuộc vào tải trọng, chiều cao của công trình và tính chất các tầng đất của công trình mà kỹ sư sẽ quyết định, tính toán và sử dụng loại móng phù hợp và an toàn.
Móng đơn
Là các loại móng đỡ một cột hoặc một cụm cột đứng sát nhau có tác dụng chịu lực.Sử dụng dưới chân cột nhà, cột điện, mố trụ cầu…
Móng đơn nằm riêng lẻ, trên mặt đất có thể là hình vuông, chữ nhật, tám cạnh, tròn,… Móng đơn có thể là móng cứng, móng mềm hoặc móng kết hợp. Cũng thường dùng khi sửa chữa cải tạo nhà nhỏ lẻ. Móng đơn là tiết kiệm nhất trong các loại móng.

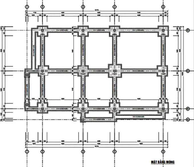
Móng băng
Móng băng là loại móng thường có dạng một dải dài, có thể độc lập hoặc giao nhau theo hình chữ thập. Đây là cách được dùng để đỡ toàn bộ kết cấu của ngôi nhà.

Tùy thuộc vào diện tích công trình cũng như điều kiện địa hình; độ cứng, độ lún của nền đất mà người ta quyết định sử dụng loại móng băng phù hợp. Điều này sẽ rất quan trọng để đảm bảo độ an toàn cho công trình.
Móng cọc
Là các loại móng gồm có cọc và đài cọc, dùng để truyền tải trọng của công trình xuống lớp đất tốt đến tận sỏi đá nằm ở dưới sâu. Người ta có thể đóng, hạ những cây cọc lớn xuống các tầng đất sâu, nhờ đó làm tăng khả năng chịu tải trọng lớn cho móng. Cọc tre, cọc cừ tràm ở Việt Nam được sử dụng như một biện pháp gia cố nền đất dưới móng công trình. Ngoài ra ngày nay thường sử dụng cọc bê tông cốt thép bằng phương pháp ép cọc xuống nền đất tốt.

